Что-то не так?
Пожалуйста, отключите Adblock.
Портал QRZ.RU существует только за счет рекламы, поэтому мы были бы Вам благодарны если Вы внесете сайт в список исключений. Мы стараемся размещать только релевантную рекламу, которая будет интересна не только рекламодателям, но и нашим читателям. Отключив Adblock, вы поможете не только нам, но и себе. Спасибо.
Как добавить наш сайт в исключения AdBlockРеклама
Эффективная штыревая УКВ антенна F-22 RW
Эффективная штыревая УКВ антенна F-22 RW
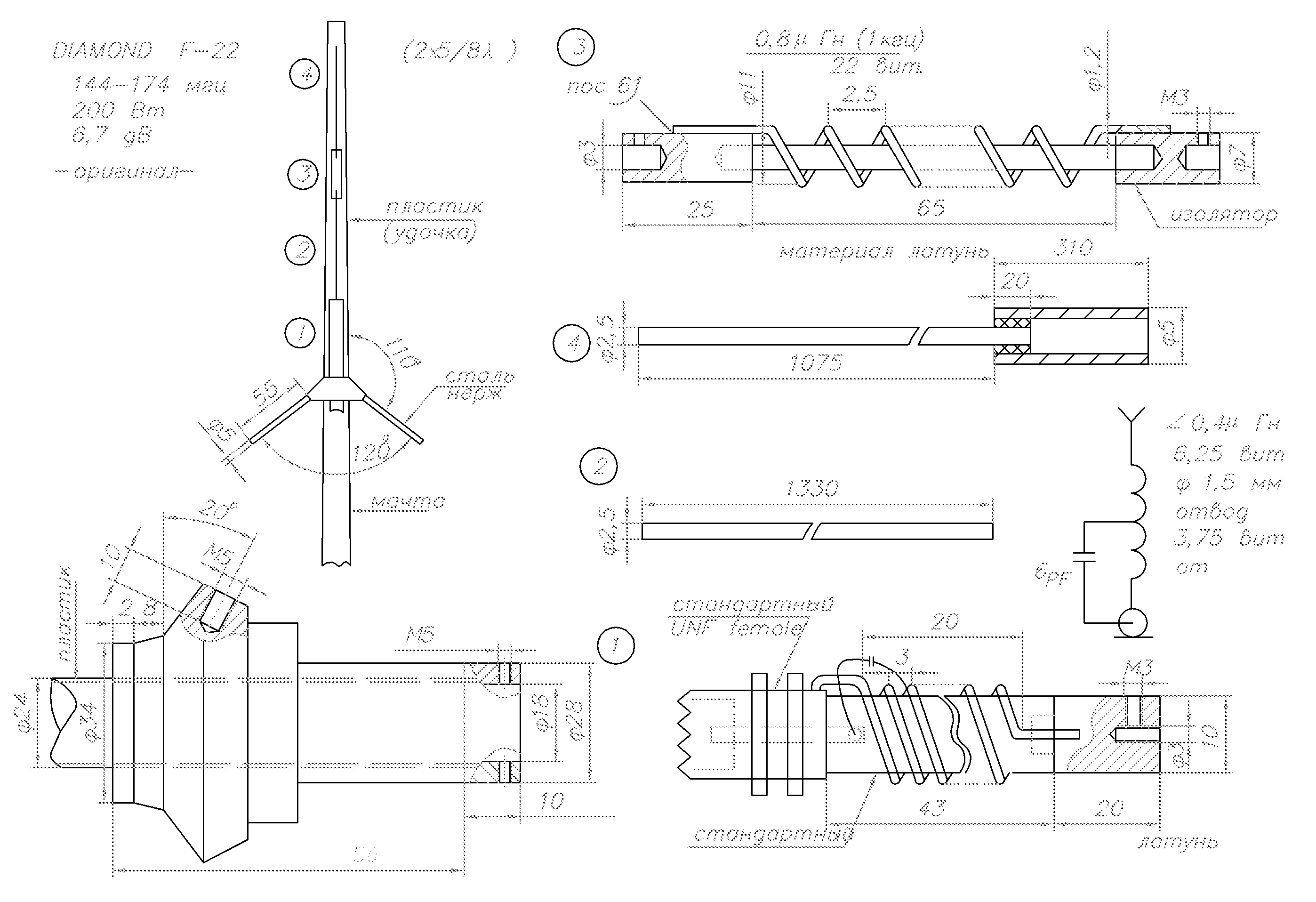
Данная конструкция антенны разработана на основе конструкции заводской антенны фирмы DIAMOND F-22 , чертёж которой приведён под названием –Оригинал- . RW- радиолюбительский вариант, так объясняет происхождение название. В конструкции антенны применены доступные материалы и себестоимость составляет около 300 руб. На первый взгляд конструкция покажется сложной, но преимущество в работе перед штыревыми антеннами типа “ четвертушка ” , 5 /8 , J- антенна и даже фирменных ARX-2(B),CRX-2(B) будет очевидной и доставит удовольствие при работе в эфире. Рис. 1. Оригинал антенны F – 22 “ Diamond ” (Щелкните мышью для получения увеличенного изображения) Материал антенныОсновой антенны является стеклопластиковое удилище. При выборе удилища нужно учесть следущее :
Далее с удилища удаляются все направляющие металические кольца, снимают самое верхнее тонкое и нижнее с держателем коленья. Оставшиеся коленья будут служить корпусом антенны. Материал для полотна антенны можно изготовить из латунной, бронзовой, не ржавеющей проволки, оцинковки, но лучше из обмеднённого биметалла. “ Стакан ” желательно изготовить из не ржавеющего материала. Противовесы могут быть из дюрали. Рис. 2. Модернизированная антенна F – 22 RW (радиолюбительский вариант) (Щелкните мышью для получения увеличенного изображения) Сборка конструкцииПри сборки нижнего контура с начало припаивают к центральной жиле разъёма посеребренный провод 1,5…2 мм и продергивают его в центральное отверстие каркаса катушки, чтобы провод вышел в боковое отверстие выше разъёма. Все наконечники каркасов катушек заворачивают вместе с клеем типа БФ. Верхний контур наматывается отдельно на оправу диаметром 8,5 мм, затем одевают на каркас и концы катушки припаивают к наконечникам каркаса. Таким образом верхний контур имеет воздушную прослойку. Затем катушки фиксируют на каркасах с помощью лака или клея. Хочу обратить внимание на слив конденсата. В результате перепада температур и влажности воздуха внутри удилища скапливается конденсат, который стекает вниз и сливается через зазор между разъёмом и стаканом основания. Зазор образуется за счёт крепления стопорных винтов не за корпус разъёма, а за срез второй резьбы. Полотно антенны в сборе с катушками вставляется через нижнее отверстие стакана и крепится стопорными винтами. Внутри удилища антенна удерживается с помощью отрезков кембрика. Не в коем случае не используйте поролон, т.к. он впитает влагу и при резком замерзании разорвёт стенки удилища, что и произошло с фирменной антенной F-22 DIAMOND на репиторе R 3 . Верхнее полотно антенны имеет ёмкостную нагрузку, которая обеспечивает широкополостность и настройку по частоте. Ориентировочно : перемещение ёмкостной нагрузки на 5мм изменяет частоту резонанса антенны на 1мГц. Трубка ёмкостной нагрузки плотно надевается на полотно антенны с помощью изолирующего материала (можно использовать кембрик или изоляцию с провода соответствующего диаметра). Стакан вставляется в трубу основания, внутри которой пропускают фидер антенны. Труба основания может иметь произвольную длину с учётом крепления её к имеющееся мачте. Входное сопротивление антенны 50 Ом, коэффицент усиления около 6,5 дБ, полоса пропускания при КСВ 1,3 ~ 2 мГц. Данная конструкция антенны уже применяется у радиолюбителей UA9FGM, RA9FSL,RA9FOR, а также на репиторе R3 и готовы ещё две для нового репитора R2. За год работы на этой антенне я провёл радиосвязи с Ульяновском, Ижевском, Качканаром и всей Пермской обл.. Хочу поблагодарить за помощь в разработке антенны Владимира Фадеева RA9FSL . Сергей Волковинский RA9FOR. |

